產品詳情
電動折疊
產品說明:
電動折疊門門體采用優質型鋼、保溫板及有機玻璃制作。特點是保溫、采光性能好;由于門體開啟后為折疊形,節省了空間。開門機引進國外技術生產,具有結構緊湊、外形美觀、性能可靠等特點。該門適用于消防車庫等場合??刂菩问椒郑憾嘟M、單組和單扇控制。根據用戶要求可配備遙控裝置,實現遠距離操作,是消防車庫用門最理想的產品。
技術參數:
|
適用洞口 (mm) |
最大寬度 | 10000 |
| 最大高度 | 10000 | |
| 驅動器型號 | K200 | |
| 功率(W) | 680 | |
| 電壓(V) | 220 | |
| 啟動電流(A) | ≤4 | |
| 頻率(HZ) | 50 | |
| 開門速度(m/min) | 18 | |
| 環境溫度℃ | -30~40 | |
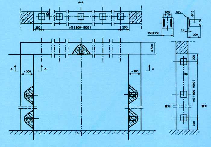
預埋件示意圖


